


The Ultimate pools, available in three different sizes, offer a very classic rectangular pool/spa/tanning ledge that fits in so well with the modern city backyard. It is such a pleasure to work with its clean lines. This will likely be our biggest seller!

Spa jets and aeration are also available for an enjoyable and relaxing spa. Two feet down from the top of the pool is our convenience ledge, to allow for exiting or entrance at any point. As listed below, the Elegance comes in Crystal Blue, Sapphire Blue, Aquamarine, Diamond Sand, Graphite Grey, Silver Grey, or Ebony Blue.
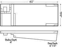
Ultimate Size Chart
|
Style
|
Length
|
Width
|
Deep Depth
|
Shallow Depth
|
Gallons
|
|
Ultimate 30
|
30'
|
15'6" |
6’1-1/2” |
4' |
11,700
|
|
Ultimate 35
|
35'
|
15'6" |
6’6-1/2” |
4' |
15,200
|
|
Ultimate 40
|
40'
|
15'6" |
6’11-1/2” |
4' |
21,000
|